Китай
- Выполняем гарантийные и сервисные обязательства, в штате сертифицированные инженеры-электронщики, инженеры-механики
- Проводим пусконаладочные работы и постгарантийное обслуживание
- Консультируем для самостоятельного проведения ТО
- Доставляем оперативно и своевременно

Станина
Цельнолитая станина наклонная станина 30° имеет низкий центр тяжести, что обеспечивает дополнительную виброустойчивость и точность при обработке.
Большое пятно контакта шпиндельной бабки и станины препятствует возникновению вибраций при точении, обеспечивает максимальную стабильность при высокопроизводительной обработке, а также увеличивает срок эксплуатации станка.

Передняя бабка
Передняя бабка имеет большой пролёт (615 мм) меду опорами к станине, что позволяет увеличить её жёсткость и снижает вибрации к минимуму.

Направляющие
Станок оснащен направляющими качения шарикового типа, позволяющими производить точение с высокой точностью и чувствительностью позиционирования.
Направляющие качения обладают малой силой трения, что обеспечивает наименьшие усилия перемещения узлов и равномерность медленных перемещений. Также за счет конструкции направляющих увеличен срок службы и снижены требования к обслуживанию узла.

Задняя бабка
Задняя бабка перемещается по направляющим с помощью суппорта.
Выдвижение пиноли осуществляется автоматически с помощью М-кода станка либо вручную с помощью кнопки на панели управления.

Инструментальная система
12-ти позиционная приводная револьверная головка BMT-55 позволяет использовать различные комбинации инструмента. Конструкция головки обеспечивает высокоточную фиксацию при смене инструмента и высокую скорость обработки.
Технические характеристики
| Наименование | Ед.изм. | Значение | |
| Функциональные возможности | Диаметр обработки над станиной | мм | 500 |
| Максимальный диаметр обработки | мм | 300 | |
| Максимальная длина обработки | мм | 500 | |
| Диаметр гидравлического патрона | дюйм | 10 | |
| Главный шпиндель | Мощность привода шпинделя, постоянная/пиковая | кВт | 11/15 |
| Скорость вращения шпинделя | об/мин | 4500 | |
| Конус шпинделя | ASA | А2-6 | |
| Диаметр осевого отверстия шпинделя | мм | 65 | |
| Максимальный диаметр прутка | мм | 50 | |
| Перемещения | Перемещение по оси Х | мм | 200 |
| Перемещение по оси Z | мм | 560 | |
| Ускоренное перемещение по оси X | м/мин | 30 | |
| Ускоренное перемещение по оси Z | м/мин | 30 | |
| Револьверная головка | Количество инструментов | шт | 12 |
| Размер токарного инструмента | мм | 25х25 | |
| Диаметр расточной оправки | мм | 40 | |
| Задняя бабка | Перемещение задней бабки | мм | 400 |
| Конус пиноли | МТ5 | ||
| Перемещение пиноли | мм | 100 | |
| Позиционирование задней бабки | мм | ручное | |
| Точность | Точность позиционирования | мм | ±0,008 |
| Повторяемость | мм | ±0,004 | |
| Прочее | Система ЧПУ | GSK | |
| Масса станка | кг | 3800 | |
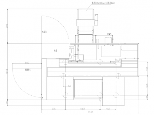
| Габариты станка (ДхШхВ) | мм | 2275х1625х1825 | |
Стандартная комплектация
- Система ЧПУ Fanuc 0i-TF plus (type 5) + экран 10,4“
- 3-х кулачковый гидравлический патрон 10”
- 1 комплект мягких кулачков, 1 комплект каленых кулачков
- 12-ти позиционная приводная револьверная головка BMT-55
- Стартовая оснастка для револьверной головки:
- держатель расточного инструмента Ø40 мм – 5 шт.
- держатель инструмента для торцевой обработки – 1 шт.
- держатель инструмента для наружного точения – 4 шт.
- набор втулок для расточного инструмента (Ø32, 25, 20, 16, 12, 10, МТ4, МТ3, МТ2, МТ1)
- осевой приводной блок – 1 шт.
- радиальный приводной блок – 1 шт.
- Задняя бабка с гидравлическим выдвижение пиноли
- Централизованная система смазки
- Централизованная система СОЖ
- Выдвижной бак СОЖ
- Пистолет сжатого воздуха
- Освещение рабочей зоны
- 3-х цветная сигнальная лампа
- Ножная педаль патрона
- Конвейер для стружки цепного типа с баком (выброс стружки справа станка)
- Система измерения инструмента Renishaw HPPA (Ручная)
- Комплект технической документации на русском языке
- Комплект инструмента для монтажа станка
- Комплект регулируемые опоры для установки станка
- Трансформатор
Оставьте заявку
Перезвоним в течение рабочего дня. Обсудим задачи, найдем оптимальное решение и запланируем работы.
Будем на связи!

